Type 02 – Smart Living, Modern Comfort

Type 02 – Smart Living, Modern Comfort

For Sale

Start From 17,920MZN

Property ID:

 None

Bedrooms
2
Bathrooms
2
Garage
2
Year Built
2025
Area
175
Lot Size
1906

Description

Purchase This Project

BUY PROJECT

Click on the button above to see the detailed price of the project

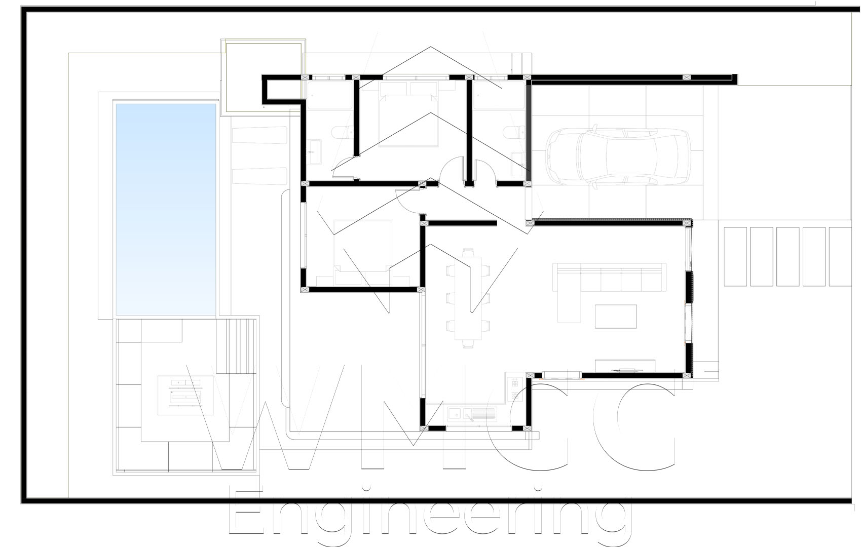
This modern duplex offers a smart and efficient layout across two levels, designed to maximize comfort and functionality. Ideal for small families or couples seeking a stylish yet practical home. The ground floor features an open-plan living and dining area seamlessly connected to a well-equipped kitchen, creating a bright and welcoming space for daily living and entertaining. A guest bathroom adds convenience. Upstairs, the private area includes two bedrooms, including a master suite, complemented by a shared bathroom. The design prioritizes natural light, ventilation, and smooth circulation between spaces. This duplex combines contemporary aesthetics with functional design, making it a perfect choice for modern, practical living.

Note:

The construction cost of this project is calculated based on the total usable building area (m²). This means that the final cost depends directly on the size of the project.

Calculation Method:
Total Construction Cost = Total Area (m²) × 20,000 MZN

Example:
If the project has 500 m²:
500 m² × 20,000 MZN = 10,000,000 MZN

This approach provides a simple, transparent, and easy way to estimate the total construction cost.

Floor Plans

Ground Floor

Property Video

  • Tipo 02 – Smart Living, Modern Comfort

Similar Properties

At WMCC Engineering, every project is an opportunity to deliver innovative and sustainable solutions. We are here to answer your questions, provide tailored proposals, and support the successful execution of engineering and consulting services.

CONTACTS

© 2025 – WMCC Engineering – All rights reserved. Designed by Niigmahost

© 2025 – WMCC Engineering
All rights reserved. Designed by Niigmahost

MZN
  • MZN
  • USD
  • EUR
  • GBP

Compare Properties

Compare
You can only compare 4 properties, any new property added will replace the first one from the comparison.

Alice Brian