Two-Story Family Residence with Pool and Outdoor Entertaining Area

Two-Story Family Residence with Pool and Outdoor Entertaining Area

Av. Olof Palme, esquina com Av. Emilia Dausse, nº 798 - Maputo

For Sale

Start From 43,520MZN m²

Property ID:

 None

Bedrooms
4
Bathrooms
2
Garage
2
Area
180
Lot Size
1200

Description

Purchase This Project

BUY PROJECT

Click on the button above to see the detailed price of the project

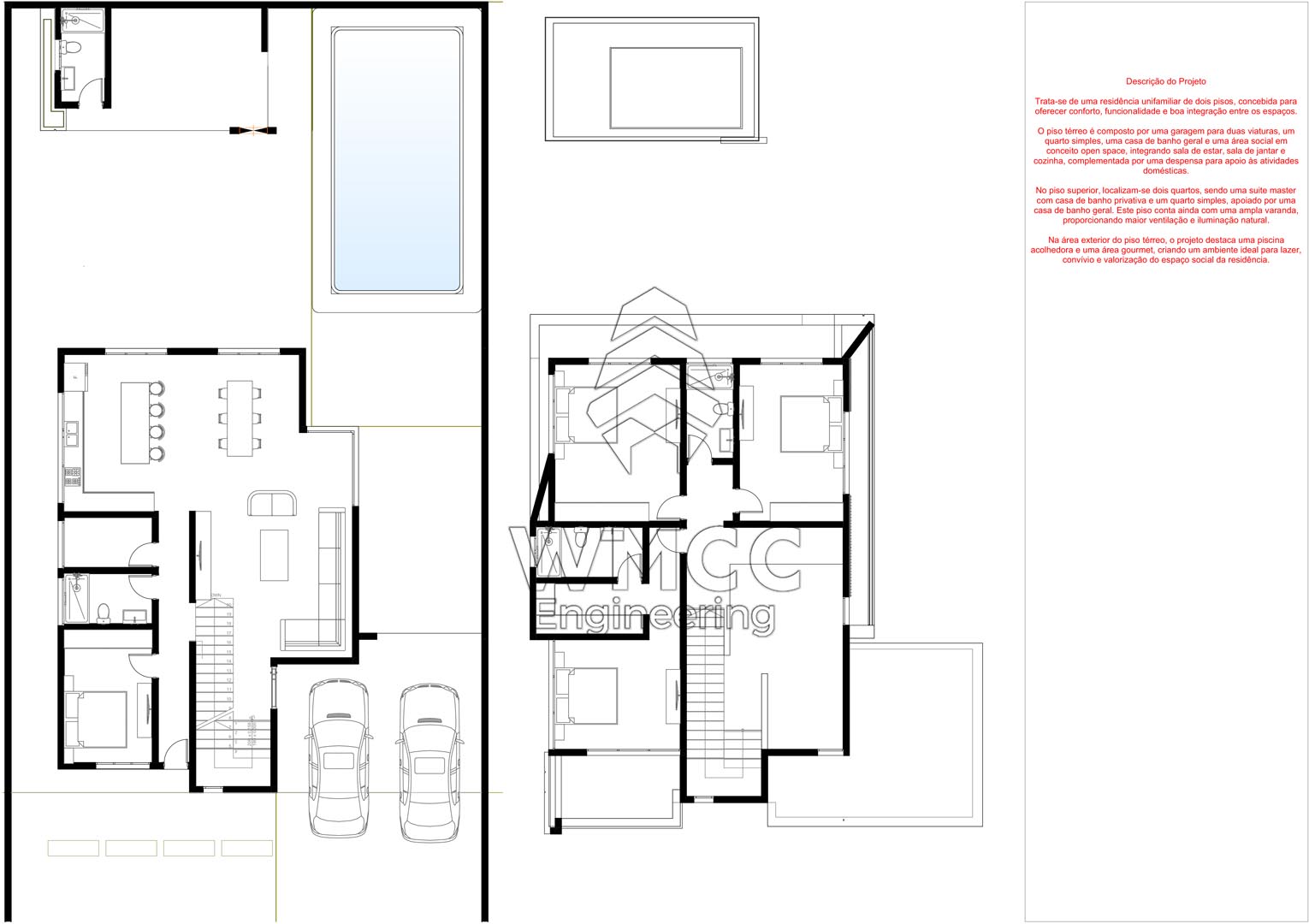
This two-story single-family home is designed to combine comfort, functionality, and seamless integration between interior spaces. The ground floor features a double garage, a standard bedroom, a general bathroom, and an open-plan social area that brings together the living room, dining area, and kitchen, complemented by a pantry to support daily household activities. Upstairs, the residence offers a master suite with a private bathroom and an additional standard bedroom supported by a shared bathroom. A spacious balcony provides natural light and ventilation, enhancing the comfort of the private spaces. The exterior highlights a welcoming swimming pool and a gourmet area, creating an ideal setting for relaxation, social gatherings, and maximizing the value of the outdoor living space. This project blends modern design with practical layout, delivering a family home that prioritizes both style and everyday convenience.

Note:

The construction cost of this project is calculated based on the total usable building area (m²). This means that the final cost depends directly on the size of the project.

Calculation Method:
Total Construction Cost = Total Area (m²) × 20,000 MZN

Example:
If the project has 500 m²:
500 m² × 20,000 MZN = 10,000,000 MZN

This approach provides a simple, transparent, and easy way to estimate the total construction cost.

Floor Plans

Ground Floor

Similar Properties

Leave a Reply

Your email address will not be published. Required fields are marked *

At WMCC Engineering, every project is an opportunity to deliver innovative and sustainable solutions. We are here to answer your questions, provide tailored proposals, and support the successful execution of engineering and consulting services.

CONTACTS

© 2025 – WMCC Engineering – All rights reserved. Designed by Niigmahost

© 2025 – WMCC Engineering
All rights reserved. Designed by Niigmahost

MZN
  • MZN
  • USD
  • EUR
  • GBP

Compare Properties

Compare
You can only compare 4 properties, any new property added will replace the first one from the comparison.