Stylish Two-Story Type 4 Home with L-Shaped Pool

Stylish Two-Story Type 4 Home with L-Shaped Pool

Av. Olof Palme, esquina com Av. Emilia Dausse, nº 798 - Maputo

For Sale

Start From $682 m²

Property ID:

 None

Bedrooms
4
Bathrooms
2
Garage
2
Area
375
Lot Size
450

Description

Purchase This Project

BUY PROJECT

Click on the button above to see the detailed price of the project

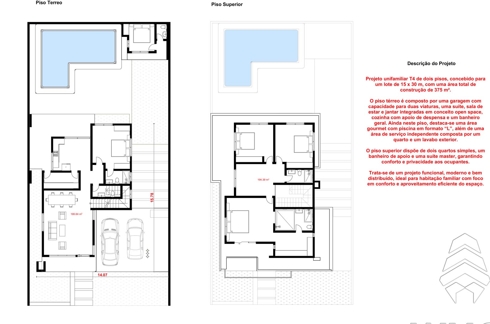
This contemporary Type 4 family residence is designed for a 15 x 30 meter plot, featuring a total built area of 375 m². It combines modern architecture with a practical layout, ideal for comfortable family living. The ground floor includes a double garage, a guest suite, and an open-concept living and dining area seamlessly connected to a kitchen with an adjoining pantry. A general bathroom serves this level, while a dedicated gourmet area with an L-shaped swimming pool creates a perfect space for outdoor gatherings and relaxation. Additionally, an independent service area with a staff room and exterior washroom ensures functionality and convenience. Upstairs, the home offers two standard bedrooms, a shared bathroom, and a luxurious master suite, providing privacy and comfort for the family. Designed with efficiency and style in mind, this home delivers a modern, well-distributed layout that maximizes space while offering elegant living both indoors and outdoors.

Note:

The construction cost of this project is calculated based on the total usable building area (m²). This means that the final cost depends directly on the size of the project.

Calculation Method:
Total Construction Cost = Total Area (m²) × 20,000 MZN

Example:
If the project has 500 m²:
500 m² × 20,000 MZN = 10,000,000 MZN

This approach provides a simple, transparent, and easy way to estimate the total construction cost.

Floor Plans

Ground Floor

Similar Properties

Leave a Reply

Your email address will not be published. Required fields are marked *

At WMCC Engineering, every project is an opportunity to deliver innovative and sustainable solutions. We are here to answer your questions, provide tailored proposals, and support the successful execution of engineering and consulting services.

CONTACTS

© 2025 – WMCC Engineering – All rights reserved. Designed by Niigmahost

© 2025 – WMCC Engineering
All rights reserved. Designed by Niigmahost

USD
  • MZN
  • USD
  • EUR
  • GBP
  • USD

Compare Properties

Compare
You can only compare 4 properties, any new property added will replace the first one from the comparison.